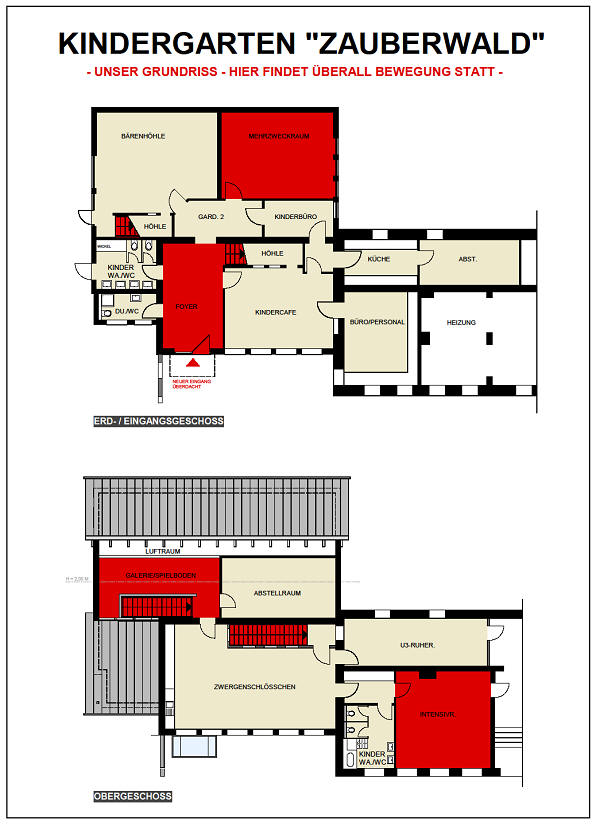
Der Eingangsbereich
Das Elterneckchen und die Kindergarderoben
befinden sich im neuen Eingangsbereich

„Zwergenschlösschen“
Eine Treppe führt
hinauf ins Obergeschoss. Hier befindet sich der neue Gruppenraum „Zwergenschlösschen“ mit
Nebenraum, Waschraum und Ruheraum!
Das
"Zwergenschlösschen“

Der Nebenraum des Zwergenschlösschens

Der Ruheraum
Der Ruheraum dient besonders den "Kleinen" beider Gruppen als Schlaf
- und Entspannungsraum
Waschraum des Zwergenschlösschens
Der neue Waschraum im
Obergeschoss ist auch für unsere „Kleinen“ optimal ausgestattet. Er
verfügt über große und kleine Toiletten und Waschbecken, sowie
über einen Wickelbereich mit Babywanne und Eigentumsfächern.


Im Erdgeschoss finden Sie folgende Räume:
Die
„Bärenhöhle“

Die
2. Ebene der "Bärenhöhle“
Über die
Treppe im Gruppenraum geht’s hinauf zur Empore. Hier können die
Kinder in der Puppen- oder Leseecke kuscheln. Wandspiele und
Teppiche bieten hier viel Bewegungsfreiheit

Der Turnraum
Unser
Turnraum wird von beiden Gruppen genutzt. Wir bieten den Kindern
hier
regelmäßig:
angeleitete Turnstunden,
Bewegungsbaustellen
(offener Turnraum),
Stilleübungen; Tanz- und Bewegungsprojekte an.

Küche
Die
Küche nutzen wir gemeinsam für angeleitete Koch- und Backaktionen.
Hier bereiten wir auch die Mahlzeiten für Mittagskinder zu.
Waschraum der Bärenhöhle
Unser Waschraum verfügt über je zwei Kindertoiletten und Waschbecken,
sowie einem Wickeltisch mit Eigentumsfächern.
Büro/ Personalraum
Das Büro ist gleichzeitig unser Personalraum. Es wird für
Büroarbeiten, Team- und Elterngespräche
und Pausen genutzt.
Kindercafe - ein Raum für viele
Möglichkeiten
Im
„Kindercafe“ findet das wöchentliche „gemeinsame Frühstück“, unser
monatliches „Gesundes Frühstücksbuffet“ und unser „täglicher
Mittagstisch“ statt. Das Kindercafe liegt direkt neben der Küche und
eine Kinderspüle ist im Raum vorhanden. Das Kindercafe wird am
Vormittag auch als Nebenraum der Bärenhöhle genutzt. Gemeinsame
Projektarbeit (Mal- und Bewegungsangebote, usw.) bieten wir hier
ganz nach Bedarf für interessierte Kinder beider Gruppen an.
Kinderbüro
In
unser kleines „Kinderbüro“ ziehen wir uns gern Für „Einzel- und
Kleinstgruppenarbeit“ zurück. Sprachförderung, integrative Arbeit,
Förderstunden von Therapeuten – aber auch kleine PC- Wunscheinheiten
für Kinder finden hier statt.
Unser Spielplatz
Der Spielplatz ist Eigentum der Stadt Lennestadt und der
Kindergarten hat ein Nutzungsrecht erworben.
Für die Instandhaltung
zahlt unser
Träger einen Jahresbetrag.

Auf unserem Spielplatz bieten Holzgeräte zum
Klettern, Schaukeln, Rutschen, Balancieren, Wippen und fürs
Rollenspiel unseren Kindern in verschiedenen Altersstufen viele
Möglichkeiten zur Bewegung.
Im Gartenhäuschen befinden sich zusätzlich viele
Spielmaterialien zur Förderung der Motorik, diese holen wir ganz
nach Bedarf für die Kinder heraus (z. B. Matschtisch, Wasserbahn,
Sandspielzeug, Fahrzeuge, Motorikkreisel, Seilchen, Laufdosen,
Schneerutscher).